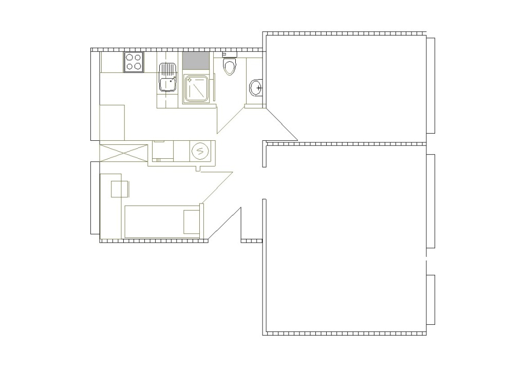
Sprzedam mieszkanie 63 m² po remoncie – Gotowe do wprowadzenia!
Oferujemy na sprzedaż wyjątkowe, 3-pokojowe mieszkanie o powierzchni 63 m², zlokalizowane na parterze w zadbanym budynku w Ostrołęce przy ul. Dzieci Polskich. Lokal przeszedł generalny remont, podczas którego wymieniono wszystkie instalacje (elektryczną i wodno-kanalizacyjną) oraz dołożono instalacje teletechniczne (internetową i telewizyjną), wykonano nowe posadzki wraz z dociepleniem, położono nowe podłogi oraz gładzie. Zmieniono pierwotny układ pomieszczeń zapewniając maksymalne wykorzystanie metrażu oraz funkcjonalność.
Mieszkanie jest jasne, dwustronne i gotowe do zamieszkania bez dodatkowych nakładów finansowych. Zapraszamy na prezentację!

